Hledám

Lokalita

Newsletter

Nejčerstvější nabídky do Vašeho e-mailu

Každý měsíc Vás budeme informovat o nově zařazených nemovitostech k prodeji a pronájmu.

Newsletter

Děkujeme za Váš zájem

Registrace k newsletteru proběhla v pořádku.

Newsletter

Děkujeme za Váš zájem

Došlo k chybě, zkuste to prosím později

Prodej

Byt 1+kk Praha 10, Strašnice

Prodáno

  • Podlahová plocha

    35 m²

  • Terasa

    11 m²

Byt, 1+kk

Studiový byt s terasou je součástí komorního bytového domu stojícího v tradiční rezidenční čtvrti Praha 10 – Strašnice s veškerou infrastrukturou i spoustou zeleně. 

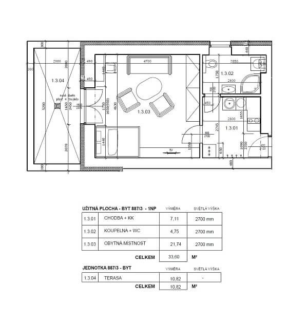
Dispozici přízemního bytu tvoří vstupní chodba s přípravou pro kuchyňskou linku, hlavní místnost s prostorem pro sezení/spaní a se vstupem na západně orientovanou terasu a koupelna (sprchový kout, umyvadlo, WC a přípojka na pračku).

Dispozici přízemního bytu tvoří vstupní chodba s přípravou pro kuchyňskou linku, hlavní místnost s prostorem pro sezení/spaní a se vstupem na západně orientovanou terasu a koupelna (sprchový kout, umyvadlo, WC a přípojka na pračku).

Dům i byt aktuálně prochází rekonstrukcí. Ke standardu patří plastová okna s trojskly, olejovaná dubová podlaha, bezpečnostní protipožární vstupní dveře s hlukovou izolací, interiérové dveře obložkové, umyvadlo a toaleta, velkoformátové obklady a dlažba. Podlahové vytápění v celém bytě zajistí plynový kondenzační kotel. K bytu přísluší sklepní kóje, obyvatelům bude k dispozici společná zahrada. Cihlový dům z 20./30.let 20.století s 12 bytovými jednotkami je bez výtahu. Parkování možné v modré zóně před domem. 

Výhodná poloha v boční ulici nedaleko tramvajové zastávky Solidarita, cca 15 minut chůze od stanice metra Strašnická. V okolí fungují restaurace, pošta, obchody i lékařské služby, oblast zpříjemňuje spousta zelených ploch v zahradách a upravených parcích.  

Podlahová plocha 34,9 m2, terasa 10,9 m2, sklepní kóje 2,6 m2

Dokončení v dubnu 2025. Vizualizace mají informativní charakter.

Pokračovat ve čtení

Vybavení

  • Podlahové topení
  • Terasa
  • Sklep

Půdorys

Přehledová tabulka

  • Referenční číslo

    106803

  • Prodejní cena

    Prodáno

  • Podlahová plocha *

    34,9 m²

  • Terasa

    10,9 m²

  • Celková plocha

    45,8 m²

  • Parkování

    -

  • Sklep

    Ano

  • Patro

    Přízemí

  • PENB

    G

* Výměra jednotky dle občanského zákoníku. Plocha je tvořena součtem celé plochy jednotky a ohraničená obvodovými zdmi.

Kontaktujte nás

Veškeré zveřejněné údaje obsažené v tomto inzerátu mají pouze informativní charakter a nejsou nabídkou ve smyslu § 1731 nebo § 1732 občanského zákoníku, ani se nejedná o veřejný příslib dle § 1733 občanského zákoníku. Z této nabídky tak nikomu nevzniká nárok na uzavření smlouvy. Společnost SVOBODA & WILLIAMS s.r.o. zprostředkovává údaje (informace) nabyté v dobré víře od vlastníka nemovité věci a z tohoto důvodu nenese odpovědnost ze jejich úplnost, správnost a přesnost. Současně není oprávněna uzavírat jménem vlastníka nemovité věci jakékoliv smlouvy spojené s prodejem nemovitosti.

Nejčerstvější nabídky do Vašeho e-mailu

Newsletter

Děkujeme za Váš zájem

Registrace k newsletteru proběhla v pořádku.

Newsletter

Děkujeme za Váš zájem

Došlo k chybě, zkuste to prosím později