Hledám

Lokalita

Newsletter

Nejčerstvější nabídky do Vašeho e-mailu

Každý měsíc Vás budeme informovat o nově zařazených nemovitostech k prodeji a pronájmu.

Newsletter

Děkujeme za Váš zájem

Registrace k newsletteru proběhla v pořádku.

Newsletter

Děkujeme za Váš zájem

Došlo k chybě, zkuste to prosím později

Snížená cena

Prodej

Rodinný dům Bratislava I, Staré Mesto, Na Hrebienku

  • 33 902 100 Kč
  • Celková plocha

    549 m²

  • Pozemek

    790 m²

Rodinný dům

Dvoupodlažní dům umístěný do svažitého pozemku na Hradním kopci nabízí kombinaci prestižní bratislavské lokality a klidného bydlení s výhledem na město. Nemovitost prošla částečnou modernizací a je ideální pro rekonstrukci nebo přestavbu podle vlastních představ. K dispozici je oplocený pozemek se zahradou a sklepem, který se nachází v těsné blízkosti ambasád, zelených ploch, Bratislavského hradu a centra města.

Dům tvoří suterén, 2 nadzemní podlaží, sklepní prostory a sedlová střecha, pod kterou může vzniknout obytné podkroví. Dům disponuje 3 bytovými jednotkami se samostatným vstupem. K domu je vypracována kompletní projektová dokumentace a stavební povolení k rekonstrukci a nástavbě jednoho podlaží s rozšířením zpevněných ploch za účelem parkování.

Dům tvoří suterén, 2 nadzemní podlaží, sklepní prostory a sedlová střecha, pod kterou může vzniknout obytné podkroví. Dům disponuje 3 bytovými jednotkami se samostatným vstupem. K domu je vypracována kompletní projektová dokumentace a stavební povolení k rekonstrukci a nástavbě jednoho podlaží s rozšířením zpevněných ploch za účelem parkování.

Rodinný dům byl postaven v roce 1987, má dřevěná i plastová okna, krb, dřevěné vchodové a interiérové ​​dveře. Na zahradě (681 m2) je samostatný vinný sklípek, vzrostlé jehličnaté stromy a výhledy na město. Nemovitost představuje potenciál pro náročného klienta, ať už jako rodinné sídlo, nebo reprezentativní sídlo firmy, vhodné také jako investice k přestavbě na luxusní rezidenční byty. Parkování pro 2 auta zajištěno v garáži a další 2 stání na pozemku před garáží.

Lokalita hradního kopce patří mezi nejprestižnější, klidné a bezpečné části hlavního města. Nabízí panoramatické výhledy a rychlou dostupnost centra města, k hradu a Horskému parku. V okolí se nacházejí galerie, muzea, restaurace a kavárny, hotely, soukromé školy a školky.

Užitná plocha 515 m2, pozemek 790 m2, garáž 34 m2.
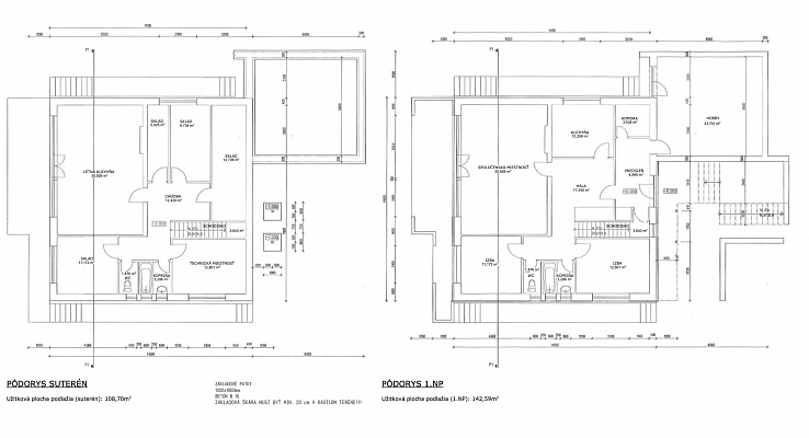
Suterén 108,7 m2: letní kuchyně, technická místnost, 3 x sklad, chodba, schodiště, koupelna a samostatné WC.
1. NP 142,59 m2: předsíň, komora, kuchyň, hala, shodiště, společenská místnost, 2 x pokoj, koupelna a samostatné WC.
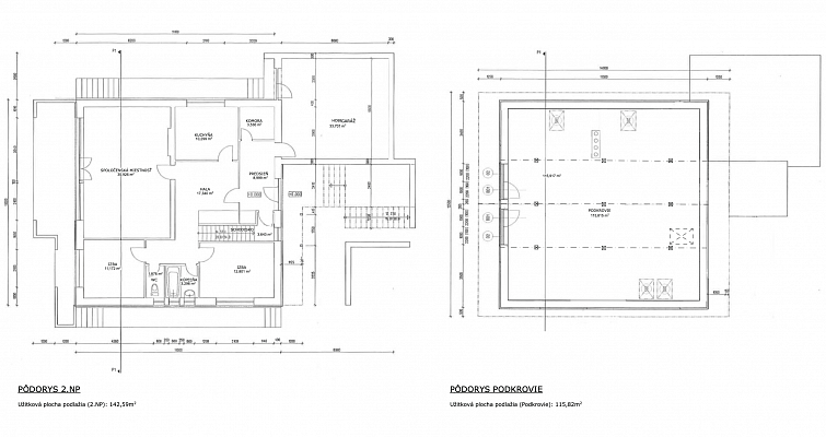
2. NP 142,59 m2: předsíň, komora, kuchyň, hala, shodiště, společenská místnost, 2 x pokoj, koupelna a samostatné WC, garáž.
Podkroví: 115,82 m2.

Pokračovat ve čtení

Vybavení

  • Internet
  • Otevíratelná okna
  • Krb
  • Terasa
  • Balkon
  • Sklep
  • Garáž

Půdorys

Přehledová tabulka

  • Referenční číslo

    107874

  • Prodejní cena

    33 902 100 Kč / 1 390 000 €

  • Podlahová plocha

    515,74 m²

  • Garáž

    Ano

  • Celková plocha

    549,44 m²

  • Zastavěná plocha

    145,25 m²

  • Zahrada

    681 m²

  • Pozemek

    790 m²

  • Světlá výška stropu

    2,65 m

  • Parkování

    Ano

  • Sklep

    Ano

  • PENB

    D

Okolí nemovitosti

Kontaktujte nás

Veškeré zveřejněné údaje obsažené v tomto inzerátu mají pouze informativní charakter a nejsou nabídkou ve smyslu § 1731 nebo § 1732 občanského zákoníku, ani se nejedná o veřejný příslib dle § 1733 občanského zákoníku. Z této nabídky tak nikomu nevzniká nárok na uzavření smlouvy. Společnost SVOBODA & WILLIAMS s.r.o. zprostředkovává údaje (informace) nabyté v dobré víře od vlastníka nemovité věci a z tohoto důvodu nenese odpovědnost ze jejich úplnost, správnost a přesnost. Současně není oprávněna uzavírat jménem vlastníka nemovité věci jakékoliv smlouvy spojené s prodejem nemovitosti.

Nejčerstvější nabídky do Vašeho e-mailu

Newsletter

Děkujeme za Váš zájem

Registrace k newsletteru proběhla v pořádku.

Newsletter

Děkujeme za Váš zájem

Došlo k chybě, zkuste to prosím později