Hledám

Lokalita

Newsletter

Nejčerstvější nabídky do Vašeho e-mailu

Každý měsíc Vás budeme informovat o nově zařazených nemovitostech k prodeji a pronájmu.

Newsletter

Děkujeme za Váš zájem

Registrace k newsletteru proběhla v pořádku.

Newsletter

Děkujeme za Váš zájem

Došlo k chybě, zkuste to prosím později

Exkluzivně

Prodej

Byt 4+kk, 4.NP, č. 4.69 Třeboň, Svobody

Rezervováno

  • Podlahová plocha

    110 m²

  • Terasa

    31 m²

  • Balkón

    10 m²

  • Zahrada

    35 m²

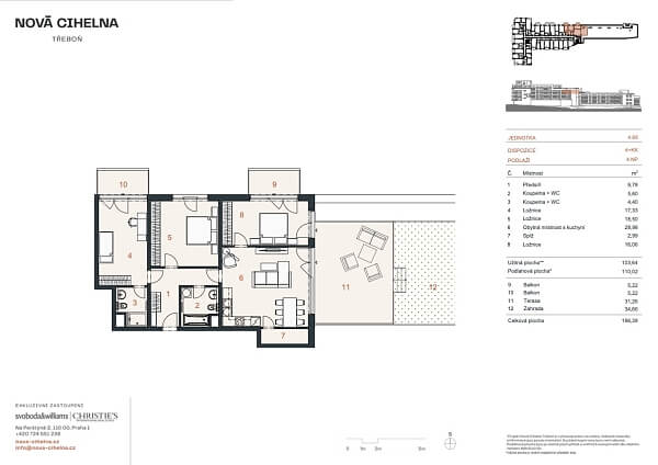
Byt 4+kk, 4.NP, č. 4.69

Byt 4+kk se 2 balkony, terasou a zahradou v projektu Nová Cihelna právě vznikajícím na místě bývalé cihelny fungující od 17. století.  V malebném lázeňském městečku Třeboň, které je součástí biosférické rezervace UNESCO a leží uprostřed romantické krajiny ideální pro cyklisty, rybáře i milovníky wellness a relaxace. Byt je vhodný pro stálé bydlení, rekreaci i k investičním účelům. Předpokládaný termín dokončení 3Q/2027.

Plochu bytu umístěného ve 4. podlaží bude tvořit obytný prostor s přípravou na kuchyni a komorou, 3 ložnice (dvě s přístupem na balkon), 2 koupelny, technická místnost a předsíň. Z obytné místnosti bude možné vstoupit na velkou východní terasu propojenou se zahradou. 

Plochu bytu umístěného ve 4. podlaží bude tvořit obytný prostor s přípravou na kuchyni a komorou, 3 ložnice (dvě s přístupem na balkon), 2 koupelny, technická místnost a předsíň. Z obytné místnosti bude možné vstoupit na velkou východní terasu propojenou se zahradou. 

Součástí standardu je podlahové vytápění, velkoplošná plastová okna s trojskly, kvalitní vinylová podlaha, bezpečnostní vstupní dveře, v koupelně velkoformátová dlažba a sanita Grohe v moderním temném odstínu Hard Graphite. K jednotce je nutné dokoupit parkovací stání a sklep

Rezidenční projekt Nová Cihelna je zasazen do klidné části Třeboně, bude stát v pěším dosahu lázní Aurora či pláže rybníka Svět. Procházkou nebo nenáročnou projížďkou na kole se lze snadno dostat do unikátně zachovalého historického jádra městečka. Město s bohatou lázeňskou tradicí a živou gastro scénou ležící v jedné z nejvyhledávanějších rekreačních lokalit České republiky je výborně dostupné autem například po dálnici D3, ale také hromadnou dopravou díky poloze na hlavním železničním koridoru. 

Podlahová plocha 110,02 m2, balkony 5,22 + 5,22 m2, terasa 31,26 m2, zahrada 34,66 m2.

Pokračovat ve čtení

Vybavení

  • Výtah
  • Sklep
  • Garáž

Půdorys

Přehledová tabulka

  • Referenční číslo

    101836

  • Prodejní cena

    Rezervováno

  • Podlahová plocha *

    110,02 m²

  • Terasa

    31,26 m²

  • Balkón

    10,44 m²

  • Celková plocha

    151,72 m²

  • Zahrada

    34,66 m²

  • Parkování

    Parkovací stání za příplatek

  • Sklep

    Ano

  • Patro

    3.

  • PENB

    B

* Výměra jednotky dle občanského zákoníku. Plocha je tvořena součtem celé plochy jednotky a ohraničená obvodovými zdmi.

Okolí nemovitosti

Kontaktujte nás

Podívejte se také na další byty v lokalitě

Veškeré zveřejněné údaje obsažené v tomto inzerátu mají pouze informativní charakter a nejsou nabídkou ve smyslu § 1731 nebo § 1732 občanského zákoníku, ani se nejedná o veřejný příslib dle § 1733 občanského zákoníku. Z této nabídky tak nikomu nevzniká nárok na uzavření smlouvy. Společnost SVOBODA & WILLIAMS s.r.o. zprostředkovává údaje (informace) nabyté v dobré víře od vlastníka nemovité věci a z tohoto důvodu nenese odpovědnost ze jejich úplnost, správnost a přesnost. Současně není oprávněna uzavírat jménem vlastníka nemovité věci jakékoliv smlouvy spojené s prodejem nemovitosti.

Nejčerstvější nabídky do Vašeho e-mailu

Newsletter

Děkujeme za Váš zájem

Registrace k newsletteru proběhla v pořádku.

Newsletter

Děkujeme za Váš zájem

Došlo k chybě, zkuste to prosím později