-
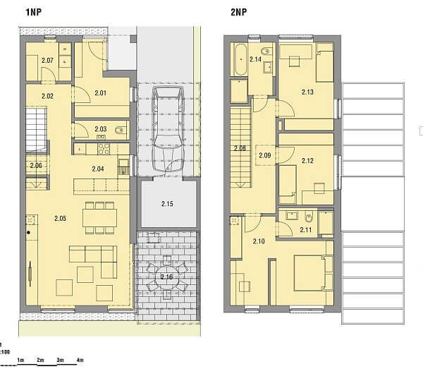
Rodinný dům 4 + kk, III.05.B
-
Praha 4, Modřany
- Celková plocha
- 149 m²
- Pozemek
- 272 m²
- Terasa
- 14 m²













