Hledám

Lokalita

Newsletter

Nejčerstvější nabídky do Vašeho e-mailu

Každý měsíc Vás budeme informovat o nově zařazených nemovitostech k prodeji a pronájmu.

Newsletter

Děkujeme za Váš zájem

Registrace k newsletteru proběhla v pořádku.

Newsletter

Děkujeme za Váš zájem

Došlo k chybě, zkuste to prosím později

Prodej

Byt 3+kk Praha 9, Čakovice, Rýnská

Rezervováno

  • Podlahová plocha

    74 m²

  • Balkón

    10 m²

Byt, 3+kk

Byt s praktickou dispozicí, velkým balkónem a garážovým stáním je součástí rezidenčního projektu tvořeného menšími bytovými domy v pražských Čakovicích, 25 minut jízdy vlakem od centra metropole.

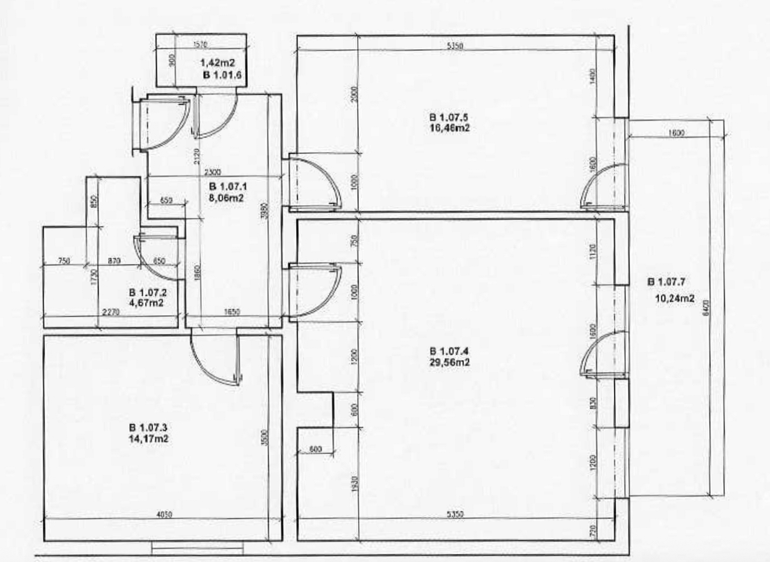
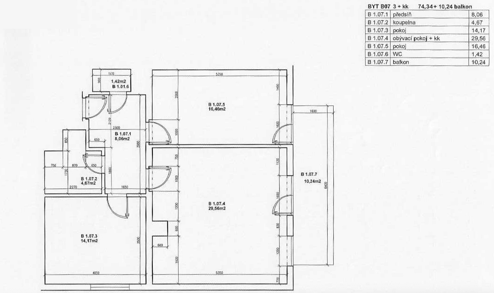
Plochu bytu umístěného v 1. podlaží třípodlažní budovy tvoří obývací pokoj s kuchyní a jídelním prostorem, 2 ložnice, koupelna (s vanou a nikou na pračku a sušičku), samostatná toaleta a předsíň. Z obývacího pokoje a jedné ložnice vede vstup na východně orientovaný balkón s výhledem do zeleně.

Plochu bytu umístěného v 1. podlaží třípodlažní budovy tvoří obývací pokoj s kuchyní a jídelním prostorem, 2 ložnice, koupelna (s vanou a nikou na pračku a sušičku), samostatná toaleta a předsíň. Z obývacího pokoje a jedné ložnice vede vstup na východně orientovaný balkón s výhledem do zeleně.

Rezidenční projekt byl vystavěn v r. 2011. Podlahy bytu jsou laminátové a s dlažbou, v oknech a balkónových dveřích jsou bezpečnostní fólie. Kuchyně zn. Hanák je vybavena vestavnými spotřebiči (indukční varná deska, myčka nádobí, elektrická trouba, chladnička s mrazákem, digestoř), v bytě jsou vestavěné úložné prostory (botník, věšák, šatní skříň) i pracovní kout. Vytápění řeší centrální plynová kotelna. Kupní cena zahrnuje garážové stání sklep, obyvatelům je k dispozici soukromý parčík, uzamykatelné dětské hřiště kočárkárna.

Dům se nachází v tiché jednosměrné ulici ve skvělé lokalitě blízko veškeré občanské vybavenosti včetně škol od mateřských po gymnázium, v dosahu je lesopark, koupaliště, tenisové kurty a další sportoviště, okolím vedou cyklostezky. Výbornou dopravní dostupnost zajišťují vlaky, autobusy a trolejbusy, cesta vlakem až do centra na Hlavní nádraží zabere pouhých 25 minut. Jízdy autem usnadňuje rychlý nájezd na dálnici D8.

Podlahová plocha 74,34 m2, balkón 10,24 m2, sklep 2,87 m2.

Pokračovat ve čtení

Vybavení

  • Výtah
  • Bezbariérový přístup
  • Parkování
  • Balkon
  • Sklep
  • Garáž
  • Kočárkárna / Kolárna

Půdorys

Přehledová tabulka

  • Referenční číslo

    110697

  • Prodejní cena

    Rezervováno

  • Podlahová plocha *

    74,34 m²

  • Balkón

    10,24 m²

  • Celková plocha

    84,58 m²

  • Parkování

    Garážové stání

  • Sklep

    3 m²

  • Patro

    Přízemí

  • PENB

    C

* Výměra jednotky dle bytového zákona. Plocha je tvořena součtem vnitřní výměry všech místností.

Okolí nemovitosti

Kontaktujte nás

Podívejte se také na další byty v lokalitě

Veškeré zveřejněné údaje obsažené v tomto inzerátu mají pouze informativní charakter a nejsou nabídkou ve smyslu § 1731 nebo § 1732 občanského zákoníku, ani se nejedná o veřejný příslib dle § 1733 občanského zákoníku. Z této nabídky tak nikomu nevzniká nárok na uzavření smlouvy. Společnost SVOBODA & WILLIAMS s.r.o. zprostředkovává údaje (informace) nabyté v dobré víře od vlastníka nemovité věci a z tohoto důvodu nenese odpovědnost ze jejich úplnost, správnost a přesnost. Současně není oprávněna uzavírat jménem vlastníka nemovité věci jakékoliv smlouvy spojené s prodejem nemovitosti.

Nejčerstvější nabídky do Vašeho e-mailu

Newsletter

Děkujeme za Váš zájem

Registrace k newsletteru proběhla v pořádku.

Newsletter

Děkujeme za Váš zájem

Došlo k chybě, zkuste to prosím později